SEXAGESIMAL HUMAN
anthropometric scale of proportions
presented at EMAGN + SONA 2020 online talk series
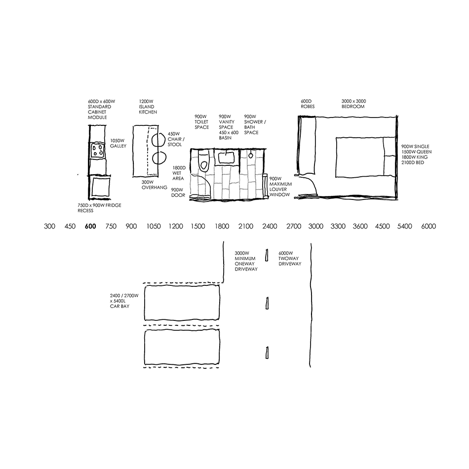
A proposed anthropometric scale of proportions in the traditions of Vitruvian Man by Leonardo da Vinci, Modular Man by Le Corbusier and Universal Man by Ernst Neufert. However rather than basing on the golden ratio, this system utilises the dimensions already standardised in the building industry and its traditions in measurements and theory of numbers. The word sexagesimal, which translates to base 60, or in this regard 600 milimeters or roughly 2 feet forms the basis of this system of proportions. In observation of crafting and building architecture, these dimensions reappear and already in use in the current building industry, except now to formalise the interchangeability between differents trades and craft.
The cabinetmaker’s 600mm wide cabinets and depth of wardrobes with 900mm high for benchtops, the tiler’s 300mm x 600mm standard tiles, the carpenter’s 450mm and 600mm timber stud spacings, the bricklayers 120mm x 240mm brick formats and the panel suppliers of 1200mm x 2400mm plywood, plasterboard and facade panels. This goes also to 900mm x 2100mm standard door openings, 2100mm minimum non-habitable ceiling height, 2400mm minimum habitable ceiling height to parking bay of 2400mm x 5400mm.
The potential alignment of these dimensions in building materials facilitates a potential geometrical order of architecture. I would describe this as virtues of alignment, where there is an unexplicable delight and beauty where joints of materials align in architecture not dissimilar to graphic design and typography as well as in larger scale of urban design or town planning where spaces or buildings are aligned in an axis idealised in classical treatises of architecture. There is also an argument of sustainability – an architecture that is derived of standard units of construction materials minimises offcut and waste of materials that goes to landfill, and often perused by proponents of modular construction methologies.
The history of these dimensions whilst now universalised by metrification, can be traced to the standardisation of the invention of plywood panels in the early 1900s of 4 feet x 8 feet or roughly 1200mm x 2400mm and prior to that the carpentry dimensions in imperial measurements such as timber spacings of 2 feet or roughly 600mm or 1 1/2 feet or roughly 450mm. To go further back in time, these imperial units of feet and inches of American and British imperial units of particularly anthropometrically 1 foot to 12 inches (approximated to 300mm) can be continuously traced back to imperial Spanish (pie), pre-metric French (pied), Arabic (qadam) and Roman (pes) and Greek (pous) imperial unit of foot, and then nominated to 1 1/2 feet equal to the earlier Egyptian and Mesopotamian cubit (approximated to 450mm) as length of elbow.
And the numerical system of base 60 in itself can be traced back to Egyptian, Babylonian history (whilst also appears in Chinese history) due to its ease of division and in its use of time measurements in relation to astronomy. 360 degree as full circle, 360 nominal days in a year, 12 months to moon cycles, 12 hours for both day time and night time, Babylonian 60 minutes and 60 seconds.
And the word human in Sexagesimal Human intends to transcend the word man used in both Vitruvian Man and Modulor Man. Le Corbusier’s Modulor Man is based on the six-foot man at 1828mm and its division to golden ratios, which arguably made its metric measurements difficult to work with, the proposed Sexagesimal Human approximates the imperial to metric measurements for its ease of division learning from the tradition of base 60, approximating the human height at 1800mm, with 150, 300, 600 increments and divisions. This translates to steps of of nominal 150mm riser and 300mm goings, seating height at 450mm, table height at 750mm and benchtop height at 900mm, bathroom modules of 900mm and bed sizes starting from 900mm to single and 2100mm x 2100mm for a large bed.
While this system of proportions facilitates interchangeability and ease of use, it should be noted that it should not be followed as a strict or absolute system, as with any standards of dimensions do not always account for the individual ergonomics nor every contextual situations – but to facilitate such articulations. Nevertheless, the Sexagesimal Human scale of proportions whilst itself grows from experiences of practicality and thus formalises its uses, attempts to reaffirm its tradition not just to the histories of industrialisation, but also to craft traditions, virtues of alignment and sustainability, ancient anthropometric measurements, and theory of numbers.




